滋賀県甲賀市 不動産 注文住宅のベストワークス株式会社

BLOG
日誌
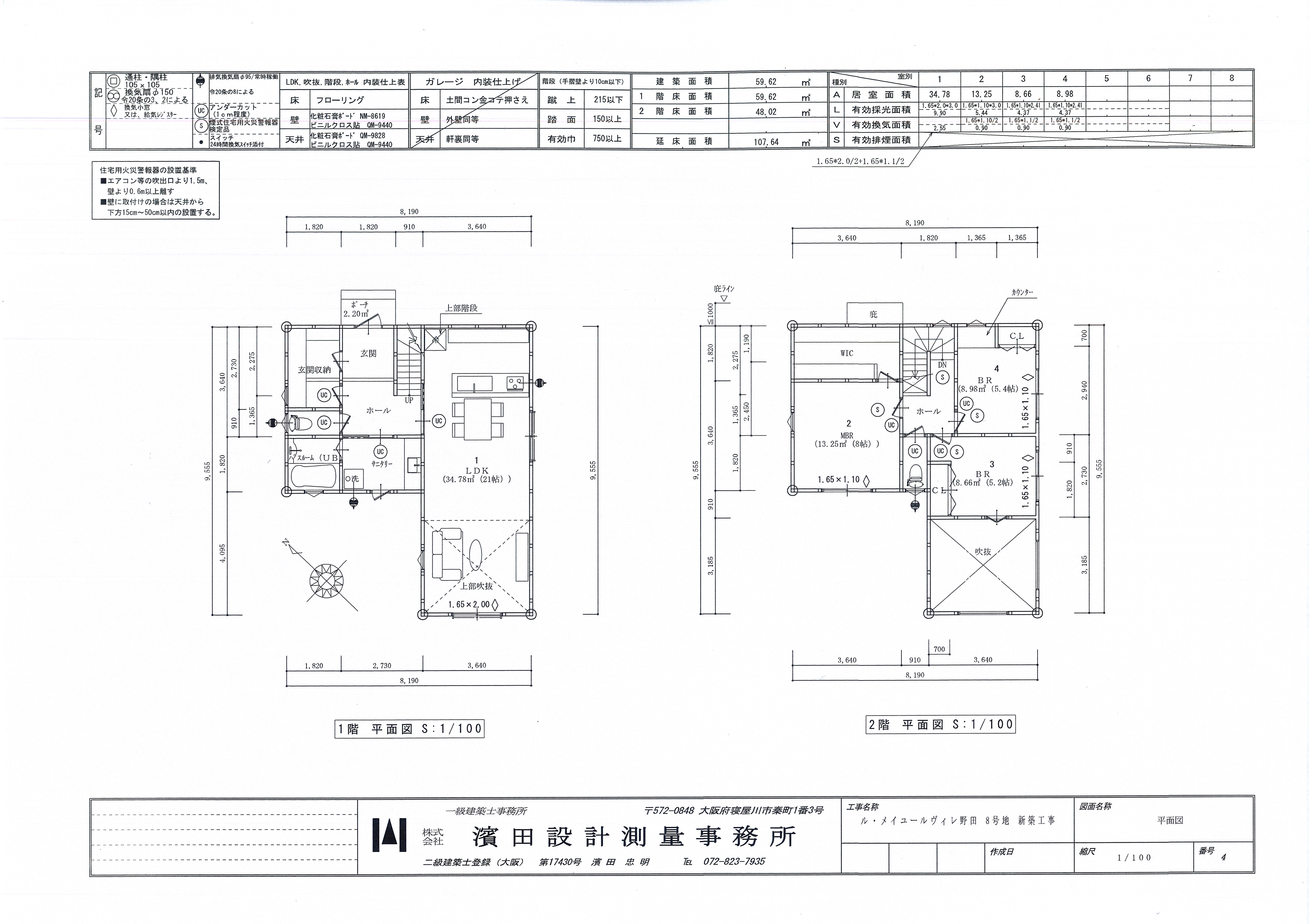
甲南町野田建売住宅【甲賀市・甲南町】

 

 

いつもブログをご覧いただきありがとうございます

甲賀市甲南町の当社分譲地“ル・メイユールヴィレ野田Ⅰ” の建売住宅の新規プロジェクトがスタートしました

 

 

↑完成イメージです

 

外部はガルバリウム(金属外壁)で構成します

意匠性・メンテナンスを考慮しました

 

 

 

 

 

↑完成イメージです

 

内部は大開口の吹き抜けリビングで解放感をもたせています

各種家電・太陽光発電システム・家具(リビングテーブル・チェア・ソファ)も標準装備です

直ぐにお住まいいただける仕様です

年内には完成予定です

 

 

 

↑ル・メイユールヴィレ野田Ⅰ

 

リーズナブルな価格で販売予定です

ご興味をお持ちいただけましたら是非お問い合わせくださいませ(^^)/

 

 

 

 

滋賀県 甲賀市 の不動産【新築住宅・デザイン住宅・注文住宅】建築全般のイマジネーションカンパニーです。

 

将来設計・デザイン・環境など、すべてのことにご相談ください。

 

BESTWORKSはENVIRONMENT×DESIGN×PRICEの三位一体でサービスをご提供します。

 

 

ENVIRONMENT(環境)

 

BESTな住環境をご提案します。 お住まいになる住環境が永くに渡り心地よい生活を営んで頂けるよう配慮します。
過去の環境の把握、現在の環境の調査、未来の環境の調査予測のもと、取り組みをしています。

 

 

DESIGN(設計)

 

BESTな自由設計によるお住まいのご提案をします。
過去、現在、将来のお客様の状況を熟知し、オンリーワンのデザインをご提案します。
最善の素材、最新の商品、最良の技術をご提案します。

 

 

PRICE(価格)

 

BESTな価格をご提案します。ただ高価な商品はご提案しません。
お客様、お一人お一人に適したご提案をします。

 

HP:https://best-works.info/
Instagram:https://www.instagram.com/bestworks_co.ltd/

BLOG一覧へ