滋賀県甲賀市 不動産 注文住宅のベストワークス株式会社

BLOG
日誌
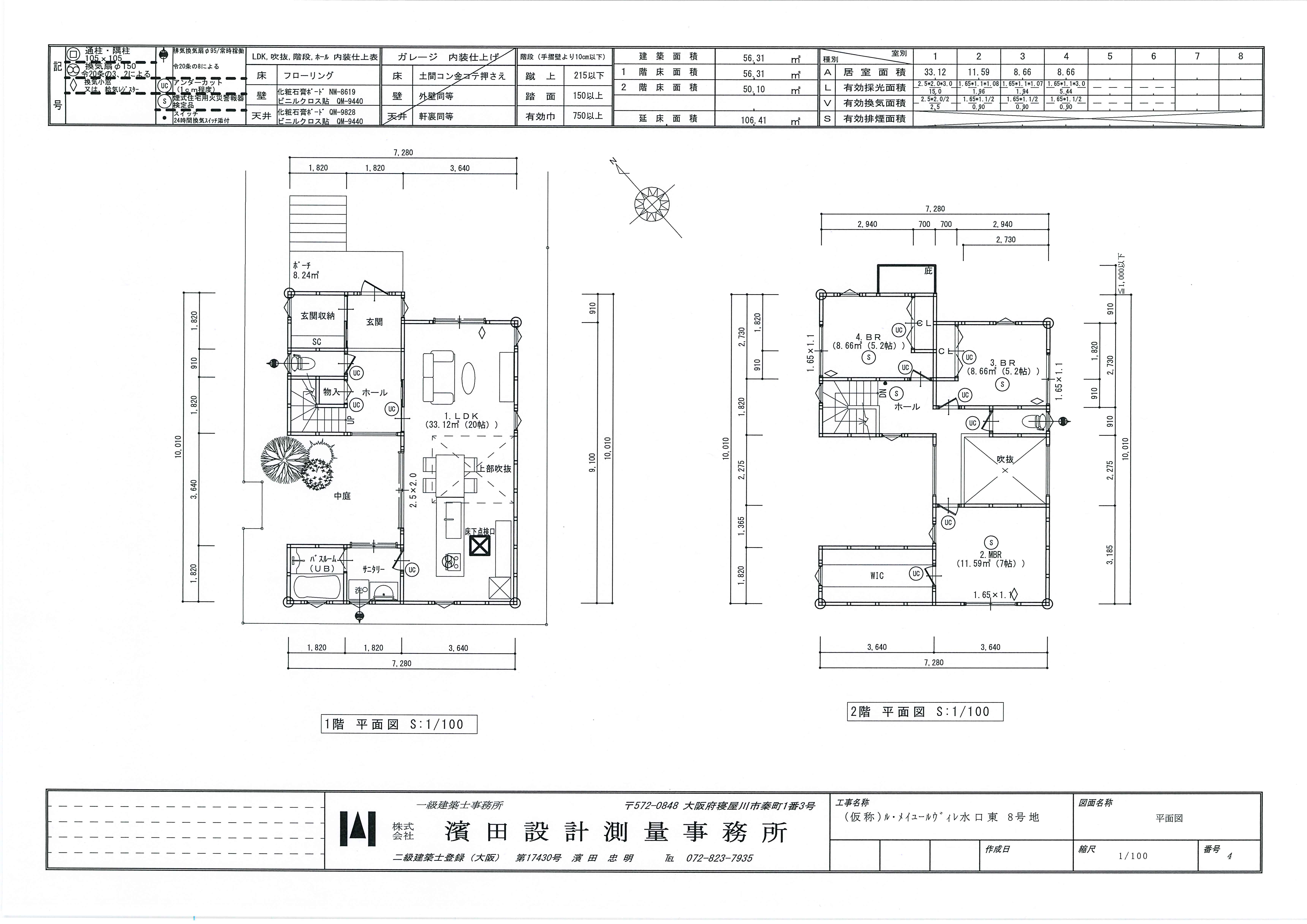
水口町建売住宅【甲賀市・水口町】

 

 

 

甲賀市水口町の当社分譲地 “ル・メイユールヴィレ水口東” での建売住宅プロジェクトが開始しました

 

 

 

 

 

 

公共施設・民間施設が近隣にあり、とても恵まれた環境です

 

甲賀病院が近所にあり、老後も安心してお住まいいただけます

 

 

 

 

 

 

当建築住宅はコートハウスのお家になります

 

周りの環境を考慮した間取りです

 

 

 

 

 

コートハウスからの眺めは開放感があり、将来的にもお家が建築される予定はございません

 

家族だけのプライベートの空間を楽しんでいただけます

 

 

 

 

 

来年の春にはお引っ越ししていただけます

 

様々な使用用途のあるコートハウスのお家

 

ご興味をお持ちいただけましたらお気軽にお問い合わせください(^^)

 

 

 

 

 

 

 

滋賀県 甲賀市 の不動産【新築住宅・デザイン住宅・注文住宅】建築全般のイマジネーションカンパニーです。

 

将来設計・デザイン・環境など、すべてのことにご相談ください。

 

BESTWORKSはENVIRONMENT×DESIGN×PRICEの三位一体でサービスをご提供します。

 

 

ENVIRONMENT(環境)

 

BESTな住環境をご提案します。 お住まいになる住環境が永くに渡り心地よい生活を営んで頂けるよう配慮します。
過去の環境の把握、現在の環境の調査、未来の環境の調査予測のもと、取り組みをしています。

 

 

DESIGN(設計)

 

BESTな自由設計によるお住まいのご提案をします。
過去、現在、将来のお客様の状況を熟知し、オンリーワンのデザインをご提案します。
最善の素材、最新の商品、最良の技術をご提案します。

 

 

PRICE(価格)

 

BESTな価格をご提案します。ただ高価な商品はご提案しません。
お客様、お一人お一人に適したご提案をします。

 

HP:https://best-works.info/
Instagram:https://www.instagram.com/bestworks_co.ltd/

BLOG一覧へ