
住宅見学会
所 在 地 滋賀県東近江市東今崎町2番31-7号
開催日時 令和8年2月28日(土) 令和8年3月1日(日)
令和8年3月 7日(土) 令和8年3月8日(日)
開催時間 open 10:00 close 18:00
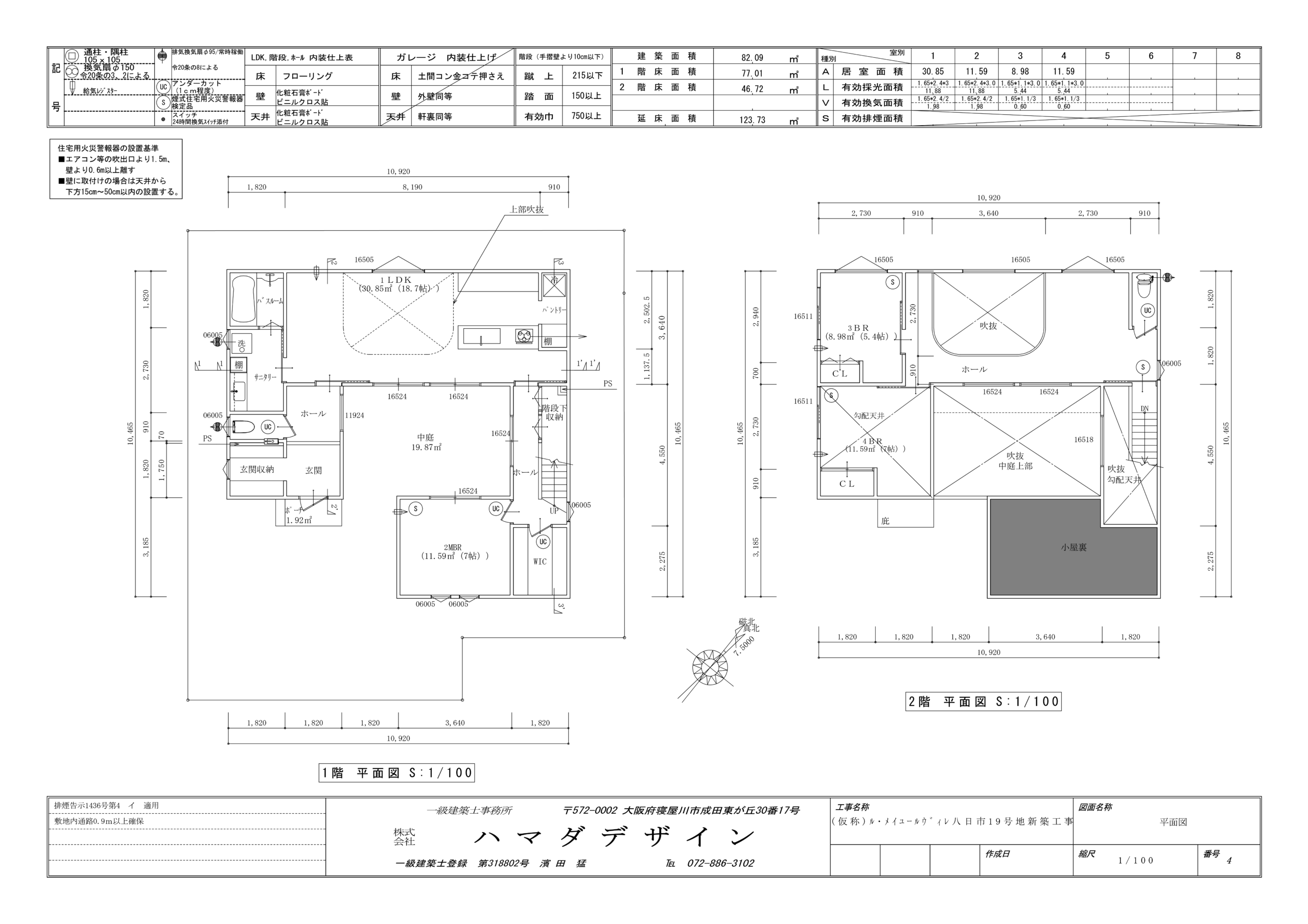
東近江市東今崎町で住宅見学会を開催させていただきます。
今回の建築コンセプトは「家リゾート」
単にお家にいるだけでなく、リゾートのような特別な空間を創造することに注力しました。


東近江市東今崎町は旧八日市市の中でも非常に利便性が高いため、車両の往来や人通りの多い地域になります。
一般的に利便性の高い地域はプライバシーを保つのに少し難しい環境になります。
そこで今回は、お家の主役に中庭(コートハウス)を設け、中庭から日光を取り込み(採光)、外部からの視線を遮断して独立性を確保しました。


一階リビングからの視線です。
大きな中庭を望むことができます。


また一部外部と接している面にルーバーを設置し、プライベートを保ちながら閉塞感を感じない空間に仕上げました。

寝室からの景色になります。
中庭越しにリビングを望むことができ、空間の一体感を演出することができました。
気候の良い春や秋にはすべての窓を開放することにより、爽やかな風を周りの視線を気にせずに感じていただくことができます。


二階ホールになります。
大きな吹き抜けと大きなFIXで、リビングや中庭を望むことができます。
こちらも中庭の特性を存分に生かした空間になります。
ご覧いただきましていかがでしょうか。
少しのデザインにも、一切妥協をせず構成した空間を感じていただけましたでしょうか。
次回は、こちらもこだわりのある外部をご紹介させていただきます。