滋賀県甲賀市 不動産 注文住宅のベストワークス株式会社

【滋賀県東近江市・モデルハウス】ie resort
ie resort
【滋賀県東近江市・モデルハウス】ie resort
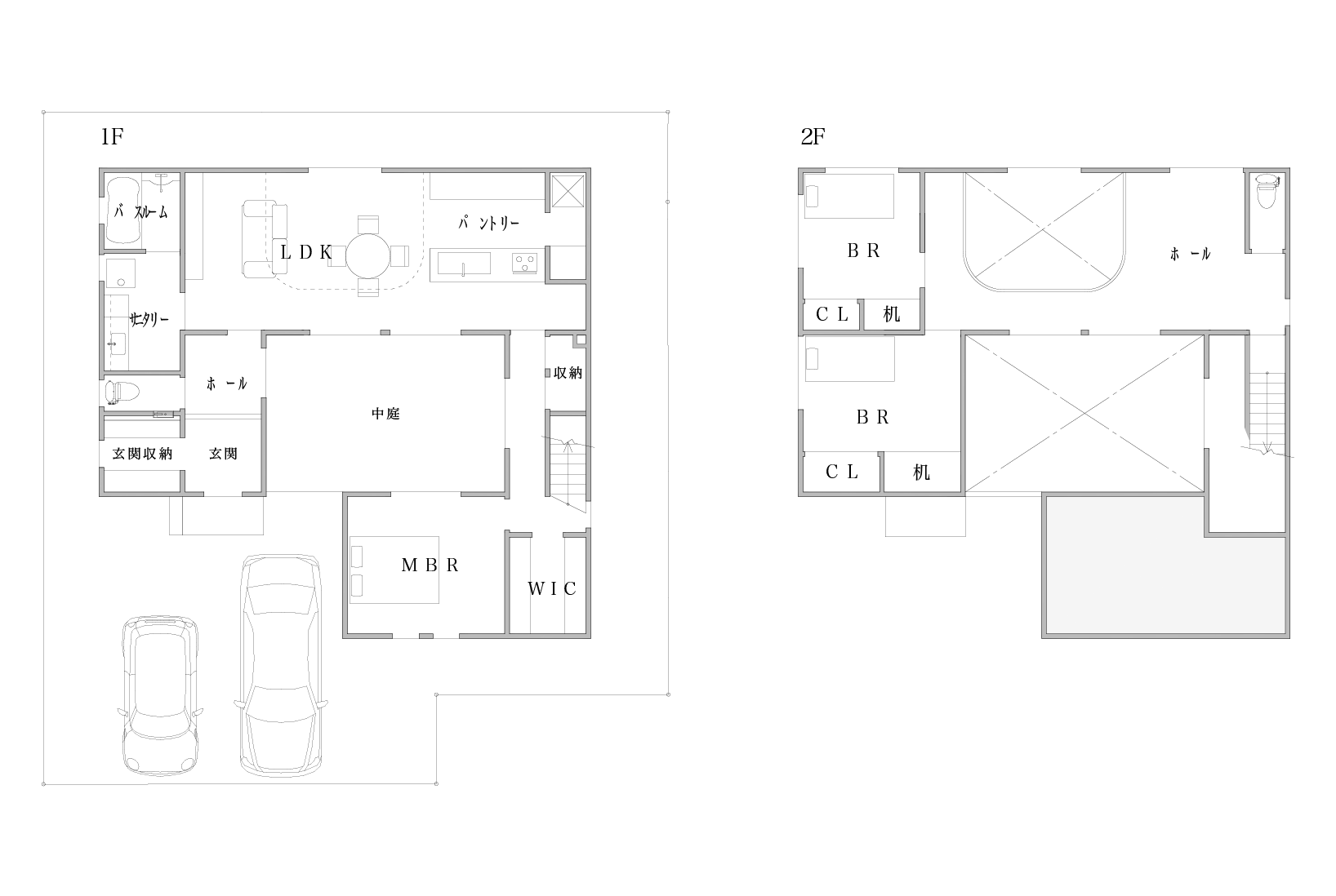
場  所 滋賀県東近江市
工  期 2025年9月〜2026年2月
構造規模 木造2階建
敷地面積 201.03㎡ / 60.81坪
建築面積 82.09㎡ / 24.83坪
延床面積 123.73㎡ / 37.43坪
コロナ禍を経て、住まいに求められる価値は大きく変化しました。
これまでの「外で楽しむ」から「家で豊かに過ごす」へ__
暮らしの重心が、確実に住まいへと移っています。
私たちはその変化に対し、単なる“住宅”ではなく、
日常そのものをアップデートする空間を提案したいと考えました。
そこで生まれたのが、一棟貸しヴィラのような過ごし方を日常に取り入れるという発想、
「イエリゾート」というコンセプトです。

ゆったりと設計されたリビングは、自然と家族が集まり、
それぞれが思い思いの時間を過ごせる余白を持たせています。
そしてその先に広がるプライベートガーデンは、外でありながら、内の延長として機能し、
室内と屋外の境界を曖昧にすることで、空間に広がりと開放感をもたらします。

朝、柔らかな光の中で庭に出てコーヒーを愉しむ時間。
休日には家族や友人と囲むBBQ。
夏には子供がはしゃぐミニプール。
季節の移ろいを感じながら手入れするガーデニング。
外で体験していただくことをお家で楽しむことができます。

それらは決して特別なイベントではなく、日常の延長として自然に存在する“豊かさ”です。

これまで外へ出かけることで得ていた体験を、移動することなく、
自宅で、好きなタイミングで味わえる。
それは時間の使い方そのものを変え、暮らしに余白とゆとりをもたらします。

また、「イエリゾート」は単なる開放感だけでなく、プライバシーにも徹底的に配慮しています。
外部からの視線を遮りながら、内に対しては大きく開く設計により、
安心感と開放感を両立させています。

住まいとは、本来「帰る場所」であると同時に、心と身体を解き放つ場所であるべきだと、
私たちは考えます。

ベストワークスがご提案するのは、単なる住宅ではなく、
“日常をリゾートに変える”という新しい暮らしのかたちです。

ぜひ一度、この空間を五感でご体感ください。
言葉では伝えきれない心地よさが、そこにあります。
WORKS一覧へ